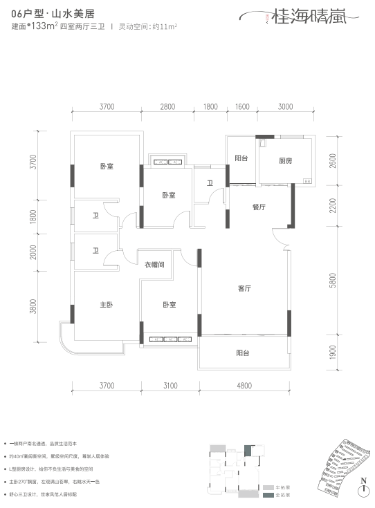
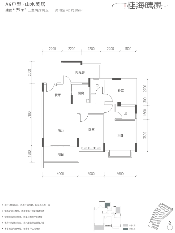
? ? ? 信昌·桂海晴嵐位于七星區(qū)航天路22號,毗鄰有著城市綠肺之稱的國家4A級景區(qū),堯山景區(qū)。斥資百億打造3600畝山水美學生活聚落,首次融合國際視野和東方審美,邀請用藝術改變生活方式的全球大師團隊匠心研造美學空間,創(chuàng)造度假、旅游、居住結合的自然庇護地,為高感度人群帶來不可多得的世外靈感空間。
? ? ? 我們在此重構桂林的誠摯款待,尋回山水人文的城市溫情,以人文藝術場所、自然體驗、精神療愈、休閑運動、教育研學、城市居停和活動歡聚構造桂林首席旅居勝地。創(chuàng)意街區(qū)配套、健康生活配套、藝文美學配套,度假居住配套、全齡教育配套,多維滿足0-100歲人群的生活需求,成為居住者的一生之城。
